| シティハイムダムール |

※拡大はサムネイル画像をタップしてください。
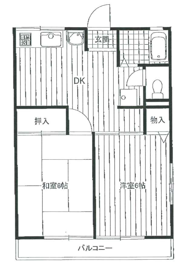
| 物件概要 |
| 物件番号 | 52414 | 物件名 | シティハイムダムール |
|---|---|
| 物件種別 | アパート |
| 賃 料 | 5.30万円 |
| 共益費 | 0.35万円 |
| 所在地 | あきる野市 油平 |
| 交 通 | JR五日市線「秋川駅」 徒歩8分 |
| 敷 金 | 0ヶ月 |
| 礼 金 | 0ヶ月 |
| 間 取 | 2DK |
| 専有面積 | 41.31m2 |
| 駐車場 | 敷地内 0.55万円 |
| その他費用 | 鍵交換費用 1.62万円 |
| 設 備 | バス・トイレ別 室内洗置 2階以上 礼金なし 敷金なし 角部屋 インターネット対応 洗面所 |
| 取引形態 | 媒介 |
| 入居可能日 | 即日 |
お問い合わせ番号は「52414」になります。
電話で問い合わせる