042-555-0061
中野ビル
気になるリストに追加
※拡大はサムネイル画像をタップしてください。
物件概要
物件番号
31139
物件名
中野ビル
物件種別
マンション
賃 料
3.30
万円
共益費
0.30万円
所在地
福生市 東町
交 通
JR青梅線「福生駅」 徒歩3分
敷 金
0ヶ月
礼 金
1ヶ月
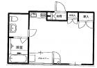
間 取
1R
専有面積
23.75m
2
駐車場
なし
その他費用
火災保険
設 備
バス・トイレ別 ペット可 2階以上
取引形態
媒介
入居可能日
即日
お問い合わせ番号は「
31139
」になります。
電話で問い合わせる
利用規約
スタッフ紹介
会社情報
株式会社ユニバーサルハウジング
〒205-0003 東京都羽村市緑ヶ丘1-21-23
Tel:
042-555-0061
Fax: 042-555-0089
営業時間:9:30~18:00