| レクセルプラザ福生 |

※拡大はサムネイル画像をタップしてください。
| 物件概要 |
| 物件番号 | 32538 | 物件名 | レクセルプラザ福生 |
|---|---|
| 物件種別 | マンション |
| 賃 料 | 10.50万円 |
| 共益費 | 0.00万円 |
| 所在地 | 福生市 東町 |
| 交 通 | JR青梅線「福生駅」 徒歩1分 |
| 敷 金 | 1ヶ月 |
| 礼 金 | 1ヶ月 |
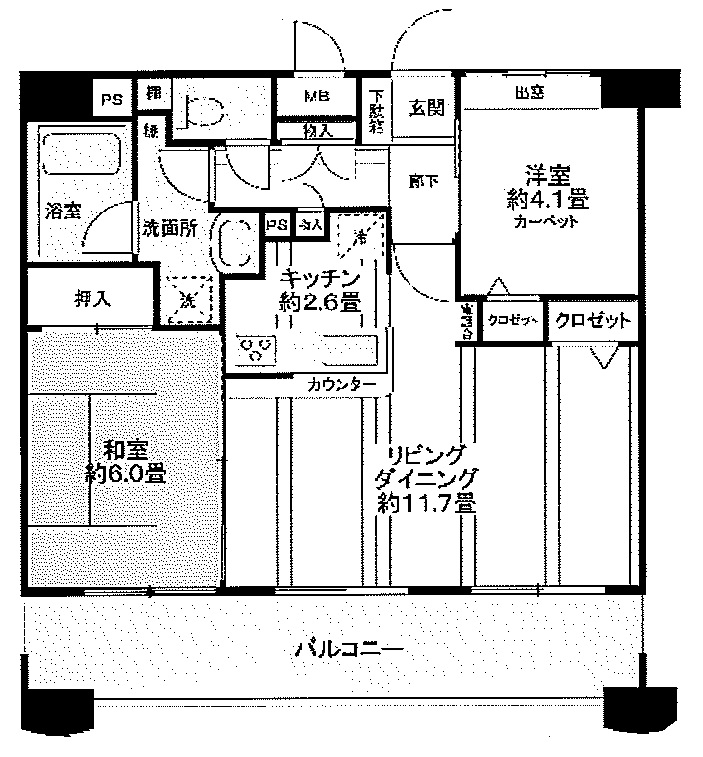
| 間 取 | 2LDK |
| 専有面積 | 58.56m2 |
| 駐車場 | なし |
| その他費用 | 家財保険 |
| 設 備 | バス・トイレ別 追炊風呂 室内洗置 2階以上 礼金なし エレベータ有 洗面所 |
| 取引形態 | 媒介 |
| 入居可能日 | 即日 |
お問い合わせ番号は「32538」になります。
電話で問い合わせる