| キョーワハウス秋川 |

※拡大はサムネイル画像をタップしてください。
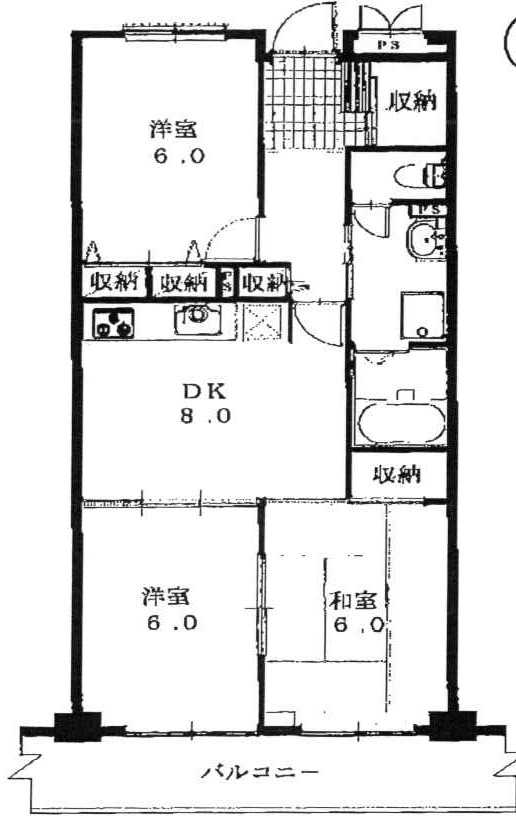
| 物件概要 |
| 物件番号 | 53300 | 物件名 | キョーワハウス秋川 |
|---|---|
| 物件種別 | マンション |
| 賃 料 | 6.70万円 |
| 共益費 | 0.20万円 |
| 所在地 | あきる野市 野辺 |
| 交 通 | JR五日市線「東秋留駅」 徒歩8分 |
| 敷 金 | 1ヶ月 |
| 礼 金 | 0ヶ月 |
| 間 取 | 3DK |
| 専有面積 | 66.60m2 |
| 駐車場 | 敷地内 0.5万円 |
| その他費用 | 火災保険 1.5万円 |
| 設 備 | バス・トイレ別 追炊風呂 室内洗置 ペット可 2階以上 礼金なし 洗面所 |
| 取引形態 | 媒介 |
| 入居可能日 | 即日 |
お問い合わせ番号は「53300」になります。
電話で問い合わせる