042-555-0061
田村貸家
気になるリストに追加
※拡大はサムネイル画像をタップしてください。
物件概要
物件番号
22677
物件名
田村貸家
物件種別
マンション
賃 料
5.50
万円
共益費
0.00万円
所在地
羽村市 羽西1丁目
交 通
JR青梅線「小作駅」 徒歩15分
敷 金
1ヶ月
礼 金
1ヶ月
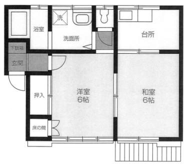
間 取
2K
専有面積
37.00m
2
駐車場
敷地内
その他費用
火災保険
設 備
バス・トイレ別 室内洗置 1階 洗面所
取引形態
媒介
入居可能日
即日
お問い合わせ番号は「
22677
」になります。
電話で問い合わせる
利用規約
スタッフ紹介
会社情報
株式会社ユニバーサルハウジング
〒205-0003 東京都羽村市緑ヶ丘1-21-23
Tel:
042-555-0061
Fax: 042-555-0089
営業時間:9:30~18:00