| 富士塚8番館Ⅰ |

※拡大はサムネイル画像をタップしてください。
| 物件概要 |
| 物件番号 | 13424 | 物件名 | 富士塚8番館Ⅰ |
|---|---|
| 物件種別 | アパート |
| 賃 料 | 6.50万円 |
| 共益費 | 0.25万円 |
| 所在地 | 青梅市 新町5丁目 |
| 交 通 | JR青梅線「小作駅」 徒歩24分 |
| 敷 金 | 2ヶ月 |
| 礼 金 | 0ヶ月 |
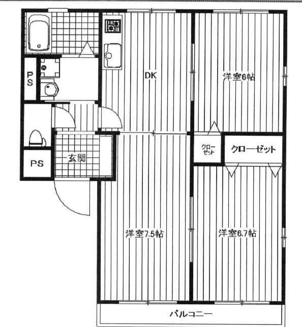
| 間 取 | 3DK |
| 専有面積 | 57.60m2 |
| 駐車場 | 敷地内 0.756万円 |
| その他費用 | 火災保険 |
| 設 備 | バス・トイレ別 追炊風呂 室内洗置 2階以上 築15年以内 |
| 取引形態 | 媒介 |
| 入居可能日 | 即日 |
お問い合わせ番号は「13424」になります。
電話で問い合わせる