| 森貸家 |

※拡大はサムネイル画像をタップしてください。
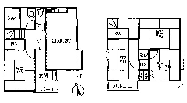
| 物件概要 |
| 物件番号 | 13434 | 物件名 | 森貸家 |
|---|---|
| 物件種別 | 一戸建て |
| 賃 料 | 7.40万円 |
| 共益費 | 0.00万円 |
| 所在地 | 青梅市 東青梅6丁目 |
| 交 通 | JR青梅線「河辺駅」 徒歩2分 バス11分 |
| 敷 金 | 1ヶ月 |
| 礼 金 | 1ヶ月 |
| 間 取 | 4K以上 |
| 専有面積 | 61.08m2 |
| 駐車場 | 敷地外 |
| その他費用 | 家財保険 |
| 設 備 | バス・トイレ別 室内洗置 角部屋 |
| 取引形態 | 媒介 |
| 入居可能日 | 即日 |
お問い合わせ番号は「13434」になります。
電話で問い合わせる