| ハーミット |

※拡大はサムネイル画像をタップしてください。
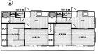
| 物件概要 |
| 物件番号 | 12663 | 物件名 | ハーミット |
|---|---|
| 物件種別 | アパート |
| 賃 料 | 4.90万円 |
| 共益費 | 0.00万円 |
| 所在地 | 青梅市 今寺5丁目 |
| 交 通 | JR青梅線「河辺駅」 徒歩25分 |
| 敷 金 | 1ヶ月 |
| 礼 金 | 0ヶ月 |
| 間 取 | 2DK |
| 専有面積 | 39.66m2 |
| 駐車場 | 敷地内 0.5万円 |
| その他費用 | 火災保険 |
| 設 備 | バス・トイレ別 ペット可 1階 |
| 取引形態 | 媒介 |
| 入居可能日 | 即日 |
お問い合わせ番号は「12663」になります。
電話で問い合わせる