| シャトーシミズ |

※拡大はサムネイル画像をタップしてください。
| 物件概要 |
| 物件番号 | 52599 | 物件名 | シャトーシミズ |
|---|---|
| 物件種別 | マンション |
| 賃 料 | 6.00万円 |
| 共益費 | 0.20万円 |
| 所在地 | あきる野市 下代継 |
| 交 通 | JR五日市線「秋川駅」 徒歩7分 |
| 敷 金 | 1ヶ月 |
| 礼 金 | 0ヶ月 |
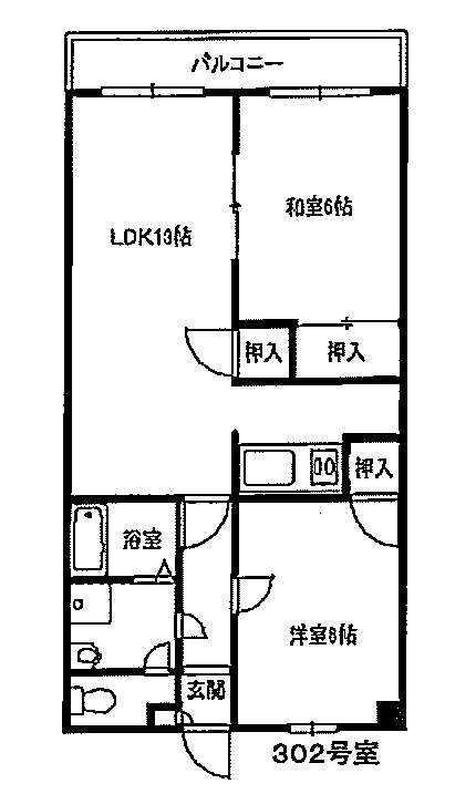
| 間 取 | 2LDK |
| 専有面積 | 51.46m2 |
| 駐車場 | なし |
| その他費用 | |
| 設 備 | バス・トイレ別 室内洗置 2階以上 礼金なし 洗面所 |
| 取引形態 | 媒介 |
| 入居可能日 | 即日 |
お問い合わせ番号は「52599」になります。
電話で問い合わせる