| ルミネント中福生 |

※拡大はサムネイル画像をタップしてください。
| 物件概要 |
| 物件番号 | 32660 | 物件名 | ルミネント中福生 |
|---|---|
| 物件種別 | マンション |
| 賃 料 | 5.00万円 |
| 共益費 | 0.20万円 |
| 所在地 | 福生市 福生 |
| 交 通 | JR青梅線「牛浜駅」 徒歩12分 |
| 敷 金 | 0ヶ月 |
| 礼 金 | 0ヶ月 |
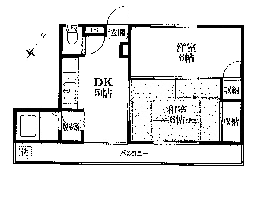
| 間 取 | 2DK |
| 専有面積 | 38.14m2 |
| 駐車場 | 敷地外 |
| その他費用 | 家財保険 1.7万円 |
| 設 備 | バス・トイレ別 エアコン付 室内洗置 1階 礼金なし 敷金なし |
| 取引形態 | 媒介 |
| 入居可能日 | 即日 |
お問い合わせ番号は「32660」になります。
電話で問い合わせる