| さんらいず三吉野 |

※拡大はサムネイル画像をタップしてください。
| 物件概要 |
| 物件番号 | 52613 | 物件名 | さんらいず三吉野 |
|---|---|
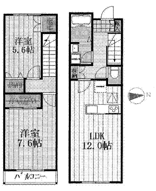
| 物件種別 | メゾネット |
| 賃 料 | 8.10万円 |
| 共益費 | 0.00万円 |
| 所在地 | 西多摩郡日の出町 平井 |
| 交 通 | JR五日市線「武蔵引田駅」 徒歩9分 |
| 敷 金 | 0ヶ月 |
| 礼 金 | 0ヶ月 |
| 間 取 | 2LDK |
| 専有面積 | 66.66m2 |
| 駐車場 | 敷地外 |
| その他費用 | |
| 設 備 | バス・トイレ別 エアコン付 CATV ペット可 1階 2階以上 礼金なし 敷金なし インターネット対応 洗面所 築10年以内 |
| 取引形態 | 媒介 |
| 入居可能日 | 相談 |
お問い合わせ番号は「52613」になります。
電話で問い合わせる