| 新町貸家 |

※拡大はサムネイル画像をタップしてください。
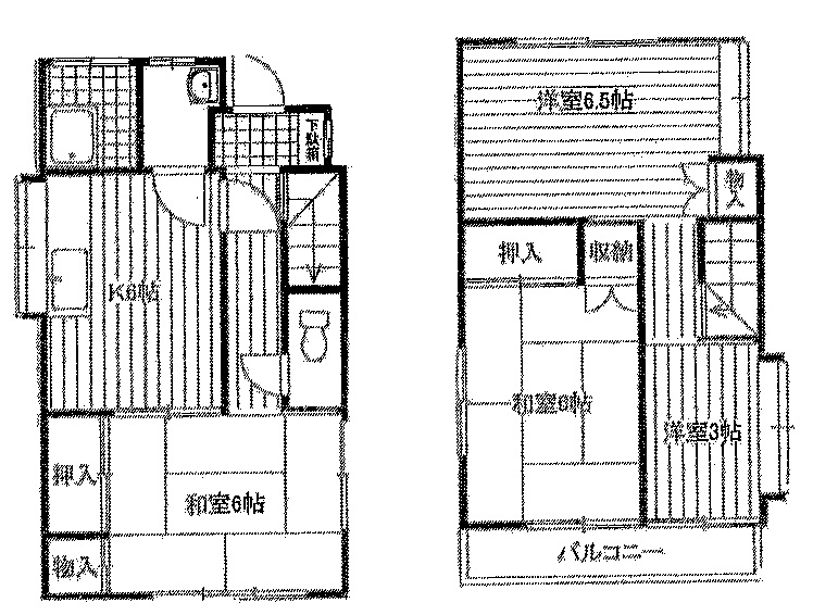
| 物件概要 |
| 物件番号 | 13493 | 物件名 | 新町貸家 |
|---|---|
| 物件種別 | 一戸建て |
| 賃 料 | 7.50万円 |
| 共益費 | 0.00万円 |
| 所在地 | 青梅市 新町1丁目 |
| 交 通 | JR青梅線「河辺駅」 徒歩16分 |
| 敷 金 | 1ヶ月 |
| 礼 金 | 0ヶ月 |
| 間 取 | 4K以上 |
| 専有面積 | 73.59m2 |
| 駐車場 | 敷地内 |
| その他費用 | |
| 設 備 | バス・トイレ別 追炊風呂 1階 2階以上 礼金なし 角部屋 洗面所 |
| 取引形態 | 媒介 |
| 入居可能日 | 相談 |
お問い合わせ番号は「13493」になります。
電話で問い合わせる