| センチュリーヒルズ |

※拡大はサムネイル画像をタップしてください。
| 物件概要 |
| 物件番号 | 33441 | 物件名 | センチュリーヒルズ |
|---|---|
| 物件種別 | マンション |
| 賃 料 | 7.20万円 |
| 共益費 | 0.30万円 |
| 所在地 | 福生市 武蔵野台1丁目 |
| 交 通 | JR八高線「東福生駅」 徒歩1分 |
| 敷 金 | 0ヶ月 |
| 礼 金 | 0ヶ月 |
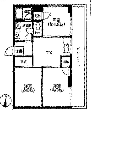
| 間 取 | 3DK |
| 専有面積 | 51.98m2 |
| 駐車場 | 敷地内 0.864万円 |
| その他費用 | 火災保険 |
| 設 備 | バス・トイレ別 エアコン付 室内洗置 2階以上 礼金なし 敷金なし 角部屋 インターネット対応 エレベータ有 洗面所 |
| 取引形態 | 媒介 |
| 入居可能日 | 即日 |
お問い合わせ番号は「33441」になります。
電話で問い合わせる