| ムーンレジデンスⅠ |

※拡大はサムネイル画像をタップしてください。
| 物件概要 |
| 物件番号 | 12754 | 物件名 | ムーンレジデンスⅠ |
|---|---|
| 物件種別 | マンション |
| 賃 料 | 8.20万円 |
| 共益費 | 0.30万円 |
| 所在地 | 青梅市 野上町3丁目 |
| 交 通 | JR青梅線「河辺駅」 徒歩14分 |
| 敷 金 | 0ヶ月 |
| 礼 金 | 0ヶ月 |
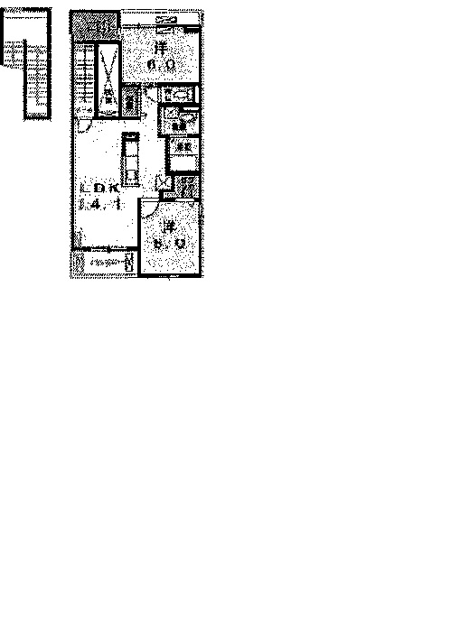
| 間 取 | 2LDK |
| 専有面積 | 72.75m2 |
| 駐車場 | 敷地内 0.756万円 |
| その他費用 | クリーニング費用 5.4万円 |
| 設 備 | バス・トイレ別 エアコン付 追炊風呂 室内洗置 2階以上 礼金なし 敷金なし 築5年以内 築10年以内 築15年以内 |
| 取引形態 | 媒介 |
| 入居可能日 | 相談 |
お問い合わせ番号は「12754」になります。
電話で問い合わせる