
| 物件番号 | 52318 | 所在地 | あきる野市 渕上 | ||
|---|---|---|---|---|---|
| 物件タイプ | マンション | 交 通 | JR五日市線「武蔵引田駅」 徒歩8分 | ||
| 賃 料 | 6.30万円 | 敷 金 | 0ヶ月 | 礼 金 | 0ヶ月 |
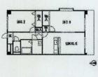
| 共益費 | 0.40万円 | 間 取 | 2LDK | 専有面積 | 58.44m2 |
| 駐車場 | 敷地内 0.6172万円 | その他費用 | 火災保険 2.0万円 | ||
| 構造/規模 | 鉄筋コンクリート/3階建 | 居室階数 | 2階 | 完成年月 | 2002年4月 |
|---|---|---|---|---|---|
| 設 備 | バス・トイレ別 追炊風呂 室内洗置 フローリング CATV 1階 2階以上 礼金なし 敷金なし インターネット対応 洗面所 築10年以内 | ||||
| 取引形態 | 媒介 | 特記事項 | |||
| 入居可能日 | 即日 | 情報提供日 | 2019年03月16日 | 次回更新日 | 2019年06月14日 |
|
お問い合わせはユニバーサルハウジングへ 物件番号「52318」にお問い合わせといえばスムーズにご対応ができます。 TEL.042-555-0061 営業時間/午前9:30~午後7:00 定休日/毎週水曜日、第1・3火曜日 |